SUBVENTION À LA COMMUNE DE SCHIRMECK POUR LE PROJET DE RENOUVELLEMENT URBAIN DU PARC DES MÉSANGES

Resumé

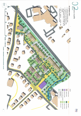
Le projet de la Commune de Schirmeck a été retenu au titre du dispositif Quartier Plus 67, suite à l'appel à projet de 2012. Ce dispositif, à requestionner dans le cadre de la nouvelle politique de l'habitat alsacienne, vise à produire du logement accessible et durable. Il prévoit l'appui technique des services de la Collectivité européenne d'Alsace à la Commune maître d'ouvrage, ainsi que le financement de 50% des études préalables à la finalisation du projet. Le présent rapport fait état de l'avancement de la phase d'étude du projet tel qu'il est désormais coconstruit avec les acteurs publics (Communauté de Communes de la Vallée de la Bruche, l'Agence Territoriale d'Ingénierie Publique, Collectivité européenne d'Alsace), le bailleur Alsace Habitat et le cabinet d'étude Artelia, chargé de sa coordination. Il propose à la Commission permanente d'attribuer une subvention d'investissement de 64 495 € à la Commune de Schirmeck au titre du dispositif Quartier Plus 67.

Pièces jointes